借りたい — 事業用物件
2025.08.04 更新
No.KJ12005
事業用物件
伊勢市本町
伊勢市駅前のケヤキ並木沿い!管理の行き届いた貸事務所!
ご成約済み
- 物件種目
- 貸事務所
- 最適用途
- 事務所
- 所在地
- 伊勢市本町
- 交通
- JR「伊勢市」駅 徒歩約3分
- 賃料
- L-②:済 L-③:済 L-④:160,600円/月
- 敷金
- L-②:済 L-③:済 L-④:490,000円(147,000円)
- 礼金
- なし
- 管理費/共益費
- L-②:済 L-③:済 L-④:24,640円/月 (うち消費税2,240円)
- 専有面積
- L-②:81.68㎡(24.70坪)
L-③:82.40㎡(24.92坪)
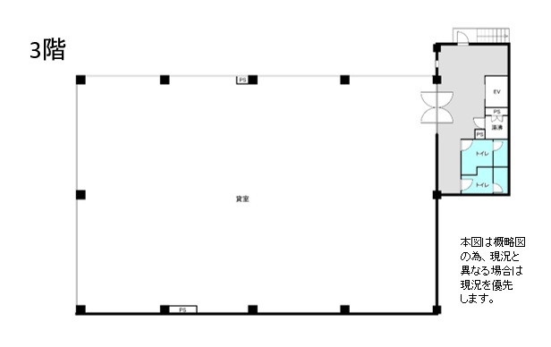
L-④:74.15㎡(22.43坪) - 階数
- 3階建
- 築年月
- 平成1年9月築
- 情報公開日
- 2016年02月02日
- 更新予定日
- 2026年02月12日
ギャラリー
物件詳細情報
- 物件種目
- 貸事務所
- 物件No
- KJ12005
- 最適用途
- 事務所
L-②
- 賃料
- ---
- 敷金
(敷金の償却) - 530,000円(159,000円)
- 礼金
- なし
- 管理費/共益費
- 27,170円/月 (うち消費税2,470円)
- 駐車料金
- 13,750円(うち消費税1,250円)/1台
- その他費用
- 専有面積
- L-②:81.68㎡(24.70坪)
- 所在階
- その他面積
- 備考
L-③
- 賃料
- ---
- 敷金
(敷金の償却) - 540,000円(162,000円)
- 礼金
- なし
- 管理費/共益費
- 27,390円/月 (うち消費税2,490円)
- 駐車料金
- 13,750円(うち消費税1,250円)/1台
- その他費用
- 専有面積
- L-③:82.40㎡(24.92坪)
- 所在階
- その他面積
- 備考
L-④
- 賃料
- ---
- 敷金
(敷金の償却) - 490,000円(147,000円)
- 礼金
- なし
- 管理費/共益費
- 24,640円/月 (うち消費税2,240円)
- 駐車料金
- 13,750円(うち消費税1,250円)/1台
- その他費用
- 専有面積
- L-④:74.15㎡(22.43坪)
- 所在階
- その他面積
- 備考
- 所在地
- 伊勢市本町
- 交通
- JR「伊勢市」駅 徒歩約3分
- 用途地域
- 商業地域
- その他の
法令上の制限 - 準防火地域
景観法(沿道景観形成地区)
- 建物名
- シャレオサエキビル
- 建物構造
- 鉄筋コンクリート造陸屋根
- 階数
- 3階建
- 築年月
- 平成1年9月築
- 増改築年月
- 電気
- 中部電力
- ガス
- 無し
- 上水道
- 公営水道
- 雑排水
- 公共下水
- 汚水
- 公共下水
- 駐車場
- 有り
- その他
- 電気(個別メーターあり)
流し、トイレ(共用)
エアコン(取替え借主負担)
- 契約期間
- 相談
- 備考
- 現況
- 空き
- 引渡
- 相談
- 取引態様
- 仲介
- 仲介手数料
- 賃料の1ヶ月分+消費税
- 情報公開日
- 2016年02月02日
- 更新予定日
- 2026年02月12日
伊勢の不動産についてのご相談は
お気軽にご連絡ください
お問い合わせは
営業時間/9:00〜18:00(日・祝日定休)
※休日でも事前にお電話頂ければ対応いたします。





































