借りたい — 事業用物件
2025.12.15 更新
No.KJ25068
事業用物件
岩渕1丁目
☆外宮前 人気のお店が集まるエリア!
☆大正モダンを感じる建物! 築15年!
☆レストラン跡!居抜き!(厨房設備、什器備品あり)
- 物件種目
- 貸店舗
- 最適用途
- 店舗
- 所在地
- 伊勢市岩渕1丁目
- 交通
- JR「伊勢市」駅 徒歩約5分(約400m)
- 賃料
- 660,000円/月(税抜金額600,000円、消費税額60,000円)
- 敷金
- 敷金:賃料の3ヶ月分(1,800,000円)
敷金の償却:敷金の50%(900,000円) - 礼金
- 無し
- 管理費/共益費
- 賃料に含む
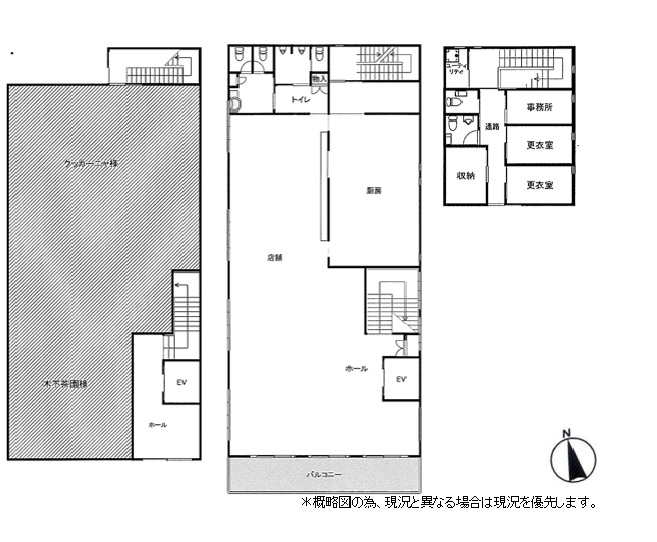
- 専有面積
- 使用部分面積合計 238.08m²(72.01坪)
(2階 約203.28m²、3階 34.80m²) - 階数
- 3階建
- 築年月
- 平成25年5月
- 情報公開日
- 2025年12月15日
- 更新予定日
- 2026年03月08日
ギャラリー
物件詳細情報
- 物件種目
- 貸店舗
- 物件No
- KJ25068
- 最適用途
- 店舗
2階、3階
- 賃料
- 660,000円
- 敷金
(敷金の償却) - 1,800,000円(900,000円)
- 礼金
- 無し
- 管理費/共益費
- 賃料に含む
- 駐車料金
- 無し
- その他費用
- 専有面積
- 238.08m²(72.01坪)
- 所在階
- 2~3階
- その他面積
- 備考
- 所在地
- 伊勢市岩渕1丁目
- 交通
- JR「伊勢市」駅 徒歩約5分(約400m)
- 用途地域
- 商業地域
- その他の
法令上の制限 - 高度地区(乙種20m)
準防火地域
景観法(一般地区)
都市再生特別措置法(居住誘導・都市機能誘導区域)
- 建物名
- 外宮前 豊恩館
- 建物構造
- 鉄骨造かわらぶき
- 階数
- 3階建
- 築年月
- 平成25年5月
- 増改築年月
- 電気
- 中部電力
- ガス
- 都市ガス
- 上水道
- 公営水道
- 雑排水
- 公共下水
- 汚水
- 公共下水
- 駐車場
- 無し
- その他
- 契約期間
- 相談
- 備考
- *什器、厨房設備有り
*店舗設計席数 100席
*エレベーター有り
*借家人賠償特約付きの火災保険加入必要
*保証会社への加入をお願いする場合があります(初回保証料(賃料の1ヶ月分)、継続保証料要) - 現況
- 空き
- 引渡
- 相談
- 取引態様
- 仲介
- 仲介手数料
- 賃料の1ヶ月分
- 情報公開日
- 2025年12月15日
- 更新予定日
- 2026年03月08日
伊勢の不動産についてのご相談は
お気軽にご連絡ください
お問い合わせは
営業時間/9:00〜18:00(日・祝日定休)
※休日でも事前にお電話頂ければ対応いたします。























